Library for the Visually Impaired

3rd Year BArch, Professor Trent Frederickson, Spring 2024

Softwares: Rhino, Enscape, Lumion, Illustrator, Photoshop, Premiere Pro

In the heart of downtown Chicago, this adaptive reuse project transforms a parking lot into a library tailored for the visually impaired. The design focuses on a multi-sensory experience utilizing materiality, scent, sound, and color to enhance wayfinding and program organization.

Nominated for the 2024 IIT Third Year Spring Award

Competition Boards

Made with Lumion & Adobe Premiere Pro

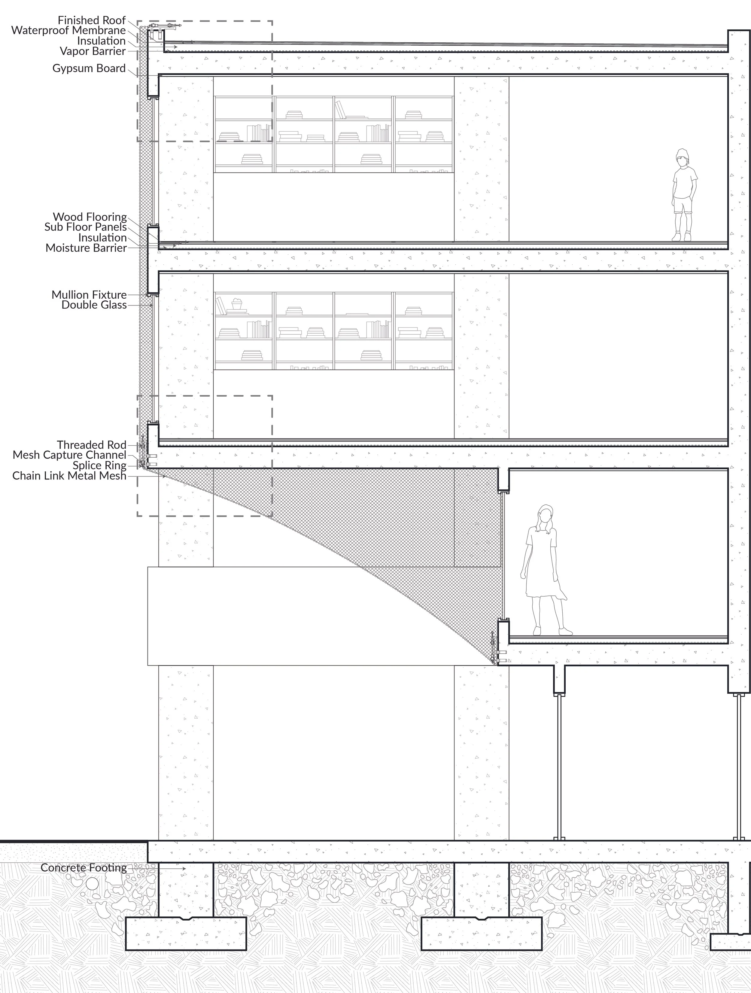
A unique sloped floor spirals through the entire structure, guiding visitors through interconnected pods that branch off its curvature. The hyperbolic form of the chain metal mesh facade provides a striking aesthetic and allows for a water reuse system throughout the building. The mesh undulates around balconies, creating individual and group study alcoves. Scented greenery embedded within the facade offers shading and wayfinding through smell. Changes in flooring offer a level of wayfinding and create a unique experience.

Elevation Oblique

Ground Floor Plan

Second Floor Plan

Physical Section Model 1/2” = 1'-0”

Reuse Existing Parking Garage

Seasonal Visualization

Fourth Floor Plan

Third Floor Plan

Building Section

Wall Section Construction Details

Summer Sun

Winter Sun

Physical Model 1/8” = 1'-0”

Physical Model 1/8” = 1'-0”